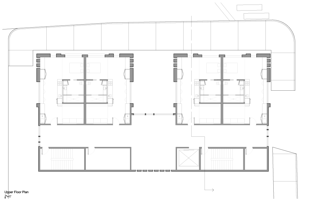
After a field trip to Chicago in my third year of school, I designed an apartment building for young professionals on the corner of Grand Ave. and Halstead St.
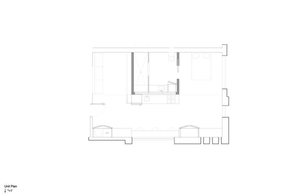
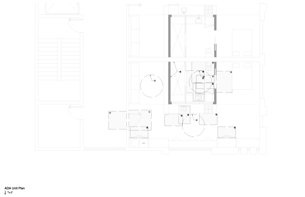
My focus during this semester was to design a roughly 500 sq. ft. unit which met ADA requirements which was replicated to create a building which met egress requirements of the IBC.
The unit was designed as a studio apartment that used a central bathroom core to separate the spaces within, similar to the Farnsworth house which I visited while on the field trip.












